Rheinmittelhaus mit schönem Garten von privat zu verkaufen
Informationen zur Immobilie:
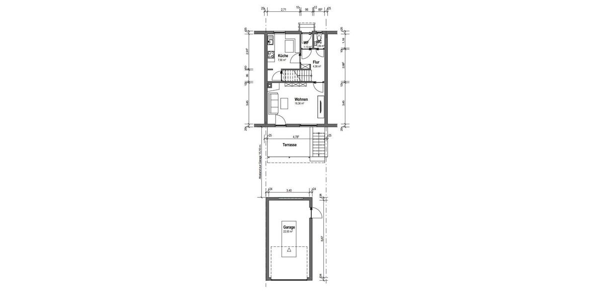
Zimmeranzahl
4
Grundstücksgröße
200,00 m²
Ort
89601 Schelklingen
Objektart
Haus
Größe
ca. 80,00 m²
299.999 €
Beschreibung:
Mehr zum Angebot Rheinmittelhaus mit schönem Garten von privat zu verkaufen:
Badesanierung 2024
Gäste-WC Sanierung 2024
Bodenbeläge erneuert 2024
Wände verputzt und gestrichen 2024
neue Innentüren 2024
Steckdosen und Lichtschalter erneuert 2024
neue Lampen
Gas-Zentralheizung
digitale Heizkörper-Thermostate Steuerung per App möglich
Einbauküche inkl. Elektrogeräte 2024
Kunststofffenster 2 Fach verglast
nicht Raucher Haushalt,... mehr erfahren
Badesanierung 2024
Gäste-WC Sanierung 2024
Bodenbeläge erneuert 2024
Wände verputzt und gestrichen 2024
neue Innentüren 2024
Steckdosen und Lichtschalter erneuert 2024
neue Lampen
Gas-Zentralheizung
digitale Heizkörper-Thermostate Steuerung per App möglich
Einbauküche inkl. Elektrogeräte 2024
Kunststofffenster 2 Fach verglast
nicht Raucher Haushalt,... mehr erfahren
weitere Häuser